Landelijk wonen in Wijckel!
Kenmerken
• Bouwjaar 1870 verbouwd in 1950
• Woonoppervlakte 113 m²
• Perceelgrootte circa 2500 m²
• Inpandige binnenruimte 167 m²
• Externe bergruimte 185 m²
• Verwarming d.m.v. gaskachels
• Aangesloten op riolering
• Goed onderhouden
• Aanleg glasvezel mogelijk
Deze prachtige stolpboerderij met vrij uitzicht aan de achterzijde vraagt om omgebouwd te worden tot woonboerderij. Deze authentieke boerderij is perfect onderhouden en zeer goed gelegen. Het heeft maar liefst 2500 m² perceeloppervlakte en volop mogelijkheden. Dit is de ideale kans!
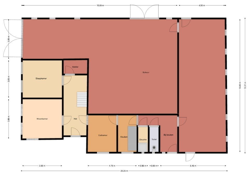
Woonhuis
Bij de entree is een korte gang met daarin trapopgang, kastruimte en de ingangen naar de woonkamer, keuken en slaapkamer die op de begane grond te vinden is. Verder is er via de keuken de bijkeuken, toilet en doucheruimte te betreden.
Eerste verdieping
Op de eerste verdieping bevinden zich een drietal hout getimmerde slaapkamers.
Schuur
De schuur is te betreden via een achterom, de bijkeuken en de grote deur aan de voorzijde. De schuur is circa 150 m² groot en heeft nog grotendeels de oorspronkelijke indeling: een deel voor de koeien, een deel voor opslag, een grote zolder en een grote deur aan de voorkant van de boerderij.
Buitenruimte
De oppervlakte van het perceel is groot genoeg voor diverse gebruiksfuncties. De verschillende bouwwerken (hierin is asbest verwerkt) op het terrein kunnen perfect gebruikt worden voor het houden van dieren en/of als garage of opslag gebruikt worden. Het erf is gedeeltelijk verhard met gestort beton.
De boerderij is goed gelegen en bevindt zich tussen Wijckel en Balk in. De boerderij is gelegen aan een doorgaande weg, waardoor je snel via de uitvalswegen richting de snelweg rijdt.
Wijckel (Fries: Wikel) is een dorp in de gemeente De Friese Meren, in de Nederlandse provincie Friesland. Het ligt ten zuidoosten van Balk, tussen Sondel en Sloten.
Wijckel is via de Wijckeler Opvaart verbonden met het Wijckeler Hop van het Slotermeer. In 2021 telde het dorp 625 inwoners.
Naast de prachtige oude dorpskern is ook de omgeving van voormalig Gaasterland geliefd. De ligging tussen de verschillende Friese meren maken van Gaasterland een uitstekend uitvalsbasis voor bijvoorbeeld watersporters en mensen die er graag te voet of op de fiets op uittrekken om te genieten van het unieke Gaasterlands landschap.
Het geheel heeft een agrarische bestemming. Mogelijk leent de boerderij zich onder meer voor een combinatie van wonen en werken. Andere gebruiksmogelijkheden zijn ook denkbaar. Zo kan de schuur geschikt worden gemaakt voor woning, kantoor, of praktijkruimte. Dat maakt wellicht zakelijke toepassingen mogelijk, maar ook dubbele bewoning of mantelzorg. Ook heeft de gemeente een positieve grondhouding om deze boerderij een kruimelgevallenregeling te hanteren en/of de bestemming tot wonen te wijzigen. Wel zal deze procedure door de koper zelf opgestart moeten worden.
Bijzonderheden
• In overleg kan er nog een stuk grond bij gekocht worden
• Exacte kavelgrootte wordt naderhand door het kadaster bepaald, boven- en/of ondermaat wordt niet verrekend
• In en om de boerderij is asbest aanwezig
• Gierkelder en mestplaat aanwezig
• Er rust een agrarische bestemming op het object. Eventuele wijziging van de bestemming is voor rekening en risico van de koper
• Informeert u zelf bij de gemeente De Fryske Marren of uw plannen zijn toegestaan binnen het bestemmingsplan




