Te koop: Vrijstaande Bungalow in Warns met Vrij Uitzicht!
Kenmerken van de woning:
-Twee slaapkamers
-Vrijstaand
-Eigen oprit
-Recente CV-installatie
-Prachtig vrij uitzicht
-Perceelgrootte van 490m2
-Energielabel B
-Badkamer en slaapkamer op de begane grond
-Ruime garage
-Bijkeuken
Vandaag nemen we je mee naar een vrijstaande bungalow aan de rand van het Friese dorp Warns. Deze bungalow biedt een prachtig vrij uitzicht en is voorzien van alle gemakken. Op dit moment heeft de woning twee slaapkamers, maar op de eerste verdieping zijn mogelijkheden om extra slaapkamers te creëren.
Bij binnenkomst in de hal vind je de trap naar de eerste verdieping, een slaapkamer, een badkamer en de toegang tot de woonkamer. De badkamer is uitgerust met een douche, wastafel en toilet, en heeft een mechanische ventilatie. De slaapkamer is ruim en bevindt zich naast de badkamer.
De woning beschikt over een L-vormige woonkamer met keuken. Dankzij de vele ramen rondom de woning is er veel natuurlijk lichtinval. Hoewel de keuken enige modernisering kan gebruiken, biedt deze veel potentie. Naast de keuken bevindt zich een ruime bijkeuken met een deur naar de tuin.
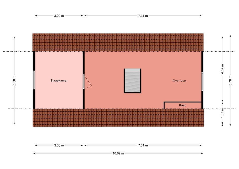
Op de eerste verdieping kom je via de trapopgang in een ruime overloop met een slaapkamer en een royale inbouwkast. Deze verdieping biedt de mogelijkheid om indien nodig extra slaapkamers te realiseren. De gehele woning is voorzien van kunststof kozijnen.
De aangebouwde garage is ruim en beschikt over elektra en een elektrische garagedeur. De woning heeft een tuin rondom en staat op een perceel van in totaal 490m2. De eigen oprit biedt ruimte voor 2 auto's en er is tevens een achterom aanwezig.
Deze vrijstaande bungalow biedt niet alleen comfortabel wonen, maar ook de rust en het vrije uitzicht dat veel mensen zoeken. Met de mogelijkheid om de woning naar eigen wens aan te passen en de prachtige omgeving van Warns, is dit een unieke kans.
Wil je deze woning bezichtigen? Neem dan contact met ons op via telefoon, e-mail of WhatsApp.

