Highlights van de woning:
- Perceeloppervlakte van 1820m²
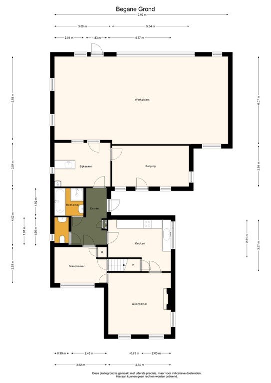
- 94m2 woonoppervlakte en 88 m2 overige inpandige ruimte
- Geweldig vrij uitzicht
- Mogelijkheid tot schuurwoning
- Optie voor dubbele bewoning
- Levensloopbestendig
- Grotendeels kunststof kozijnen
- Veel privacy
- Vier slaapkamers
- Vrijstaande woning
- Bouwjaar 1951
We nemen je graag mee naar Buorren 53, een charmante vrijstaande woning gelegen in het pittoreske Warns. Deze woning wordt omgeven door een adembenemend vrij uitzicht en biedt unieke mogelijkheden!
De woning, gebouwd in 1951, straalt karakter uit en heeft volop potentie. Zoek je een woning die direct als thuis voelt? Dan is dit wellicht jouw droomhuis. Wil je juist kleiner gaan wonen? Ook dan past deze woning mogelijk perfect bij jou.
De woning staat op een royaal perceel van maar liefst 1820m² en beschikt over vier slaapkamers, waarvan één op de begane grond. Bij binnenkomst stap je in de hal met toegang tot de bijkeuken, slaapkamer, keuken, badkamer en de trap naar boven. Het huis voelt knus aan maar biedt tegelijkertijd veel ruimte. Er zijn mogelijkheden voor kangoeroewonen en het bouwen van een schuurwoning.
De keuken leidt naar de bijkeuken, waar je het toilet en de badkamer vindt. Op de eerste verdieping vind je een overloop en drie ruime slaapkamers.
Ook de buitenruimte heeft veel te bieden. De voor- en achtertuin zijn sfeervol en beschut, met achterin de tuin een prachtig uitzicht over de omliggende landerijen. Dankzij de gunstige ligging geniet je de hele dag van zon in de tuin, ideaal voor de zonaanbidders!
De ruime schuur biedt veel mogelijkheden en is voorzien van stroomaansluiting. De diepe achtertuin biedt niet alleen rust en ontspanning, maar ook voldoende ruimte om meerdere auto’s te parkeren.
Wil je deze woning zelf ervaren? Neem dan gerust contact met ons op via telefoon, e-mail of WhatsApp.



