Boppelâns 60, Warns
Bijzonderheden:
- Bouwjaar 1973
- Vier slaapkamers
- Speeltuin voor huis
- Zonnepanelen
- Zonne boiler
- Energielabel B
- Vaste trap naar zolder
- Ruime bijkeuken
- Tuin gericht op het zuiden
Op een fijne woonlocatie in Warns, met vrij uitzicht op de speeltuin aan de voorzijde, staat deze nette tussenwoning uit 1973. Een ideale woning voor starters én jonge gezinnen die comfortabel willen wonen met een zonnige tuin op het zuiden en een keurige energieprestatie (energielabel B).
Indeling
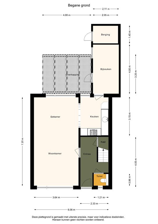
Via de entree kom je in de hal met toilet en trapopgang. De lichte woonkamer biedt een prettige leefruimte met uitzicht aan de voorzijde en een fijne verbinding met de keuken aan de achterzijde.
De keuken is compleet uitgevoerd en voorzien van een vaatwasser, combi-oven, koel-/vriescombinatie, 4-pits gasfornuis en voldoende kastruimte. Aansluitend bevindt zich de praktische bijkeuken met buitendeur naar de tuin. Hier is tevens de mogelijkheid om de wasmachine en droger te plaatsen; de aansluitingen bevinden zich momenteel in de badkamer.
Eerste verdieping
Op de verdieping zijn drie slaapkamers aanwezig. De badkamer is functioneel ingericht en beschikt over een douche, wastafel, toilet en de witgoedaansluitingen.
Tweede verdieping
Via een vaste trap bereik je de zolderverdieping. Deze ruimte biedt volop mogelijkheden voor het realiseren van een vierde slaapkamer, werkruimte of hobbykamer.
Buiten
De achtertuin is gunstig gelegen op het zuiden en voorzien van een overkapping, waardoor je al vroeg in het voorjaar en tot laat in het najaar comfortabel buiten kunt zitten. De woning is daarnaast uitgerust met kunststof kozijnen en 8 zonnepanelen, wat bijdraagt aan het wooncomfort en de energiezuinigheid.
Over Warns
Warns is een levendig en sfeervol dorp in het prachtige zuidwesten van Friesland, vlak bij de IJsselmeerkust en het pittoreske stadje Stavoren. Het dorp heeft een hechte gemeenschap en biedt de rust van het Friese platteland met de voorzieningen van grotere plaatsen als Balk en Koudum op korte afstand.
De omgeving is ideaal voor liefhebbers van wandelen, fietsen en watersport. Binnen enkele minuten sta je aan het water of midden in het groen. Warns heeft bovendien een basisschool, dorpshuis, sportverenigingen en diverse lokale ondernemers. Hier woon je landelijk, maar toch centraal.
Een complete gezinswoning op een mooie plek in Warns, met speelgelegenheid voor de deur en voorzieningen in de directe omgeving.





