Photo
Photo 2
Photo 3
Photo 4
Photo 5

Dwinger 10 8715 HV Stavoren

€ 225.000,- k.k.
Jasper Huisman NVM Register Makelaar
Neem contact op

Omschrijving

Vrijstaande starterswoning met serre en twee badkamers in Stavoren

Aan een rustig straatje in het historische Stavoren staat deze vrijstaande starterswoning met twee slaapkamers, een badkamer op de begane grond, een tweede badkamer boven en een fijne serre aan de achterzijde. Een woning met verrassend veel ruimte en mogelijkheden, waar je met enkele aanpassingen een heerlijk open en licht woonhuis van kunt maken.

Belangrijke kenmerken:

-Vrijstaande starterswoning
-Gelegen in Stavoren
-2 slaapkamers
-Badkamer op de begane grond met douche, ligbad, toilet en wastafel
-Tweede badkamer op de verdieping met wastafel en toilet
-Serre aan de achterzijde met mogelijkheden voor een open woonkeuken
-Keuken met vaatwasser, 4-pits gasfornuis, oven en koelkast
-Tuin op het noordoosten
-Extra berging/atelier/hobbyruimte in de tuin
-Energielabel E

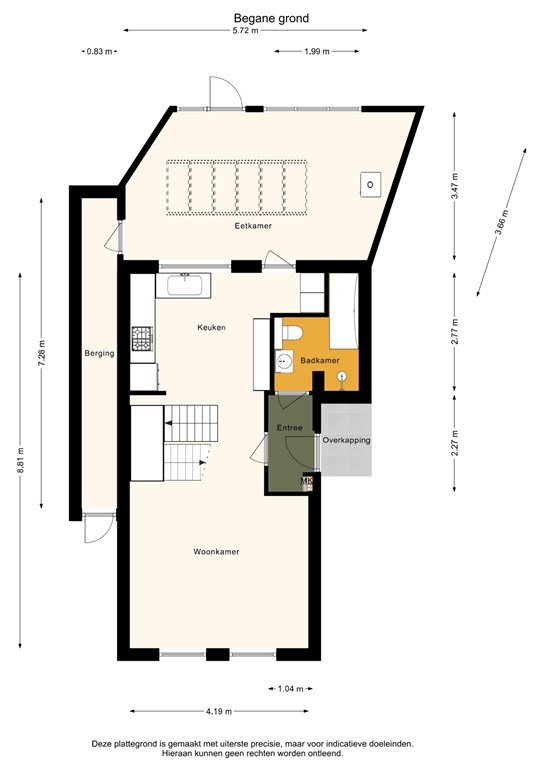
Je komt binnen via de hal met toegang tot de woonkamer en de badkamer op de begane grond. Deze badkamer is compleet uitgevoerd met een douche, ligbad, toilet en wastafel. De woonkamer staat in verbinding met de keuken, die is voorzien van diverse inbouwapparatuur zoals een vaatwasser, 4-pits gasfornuis, oven en koelkast.

Aan de achterzijde van de woning bevindt zich een prachtige serre. Deze ruimte biedt veel licht en kan op een mooie manier bij de keuken worden betrokken, waardoor een ruime en open leefruimte ontstaat met zicht op de tuin.

Op de verdieping bevinden zich twee slaapkamers. Daarnaast is hier een tweede badkamer aanwezig met een wastafel en toilet, wat extra comfort biedt voor bewoners en gasten.

De tuin ligt op het noordoosten en biedt een fijne plek om buiten te zitten. In de tuin staat een extra berging die zich uitstekend leent als atelier, hobbyruimte of voor het opbergen van spullen.

De woning beschikt over energielabel E.

Kortom: een vrijstaande woning met karakter, twee badkamers en volop mogelijkheden om deze geheel naar eigen smaak te moderniseren.

Wonen in Stavoren
Stavoren is een karakteristieke en historische stad aan het IJsselmeer, bekend om haar maritieme sfeer, havens en prachtige vergezichten. Hier woont u in een rustige en gemoedelijke omgeving, met water, natuur en recreatiemogelijkheden altijd dichtbij.
De stad beschikt over diverse voorzieningen zoals winkels, horeca en openbaar vervoer, waaronder een treinstation met verbinding richting Leeuwarden. Daarnaast zijn het IJsselmeer en de Friese meren ideaal voor liefhebbers van watersport, wandelen en fietsen. Stavoren combineert het beste van rust, natuur en bereikbaarheid – een heerlijke plek om thuis te komen.

Jasper Huisman NVM Register Makelaar
Neem contact op

Buurt

    Kaart

    Plattegronden

    Floorplan 2
    Floorplan 3
    Floorplan 4
    Floorplan 5
    Floorplan 6
    Floorplan 7
    Floorplan 8
    Floorplan

    Kenmerken

    • Object soortWoonhuis
    • Jaar1929
    • Dak typeZadeldak
    • Woonoppervlakte90 m2
    • Inhoud332 m3
    • BergingJa
    • GarageJa
    • Energie klasseE
    • VerwarmingCV ketel, Houtkachel
    • Soort warm waterCV ketel
    • Bouwjaar CV ketel2024
    • Aantal kamers2
    • Aantal slaapkamers2
    • Aantal verdiepingen2
    • Aantal kamers2
    • Aantal slaapkamers2
    • Aantal verdiepingen2