Prachtige chalet (bouwjaar 2015) op Camping De Zonneheuvel in Oudemirdum!
Op een rustige jaarplaats (plek 2) op Camping De Zonneheuvel staat dit zeer verzorgde, vrijstaande chalet uit 2015. De chalet beschikt over een perceel van circa 200 m², is uitstekend onderhouden en biedt volop rust, privacy én comfort.
Kenmerken:
• Geschikt voor 4 personen
• Gelegen op een jaarplaats (huur ca. € 1.920,- per jaar, excl. verbruikskosten)
• Volledig en modern ingericht
• Gehele jaar te gebruiken
• Uitstekend geïsoleerd en onderhoudsarm
• In uitstekende staat van onderhoud
• Inclusief complete inventaris
• Huisdieren toegestaan
• Verhuur niet toegestaan
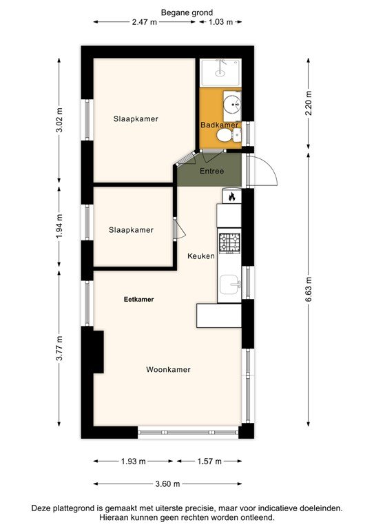
Het chalet (ca. 32 m²) beschikt over een lichte woonkamer, een complete keuken met fornuis, oven, koelkast en voldoende kastruimte, twee slaapkamers en een badkamer. Alle aanwezige apparatuur wordt meegeleverd. De ligging is rustig, aan een doodlopend pad direct naast het bos.
Buitenruimte:
De ruime tuin is ingericht met een:
• houten tuinhuis van ca. 8 m²
• overkapping
• terras
• eigen parkeerplaats
De tuin is onderhoudsvriendelijk aangelegd en biedt ruimte én beschutting.
Over Camping De Zonneheuvel
Camping De Zonneheuvel ligt midden in het groen, aan de rand van de Gaasterlandse bossen in Zuidwest-Friesland. Vanuit de camping loop je zo het bos in en ook het IJsselmeer is op loopafstand. Een plek waar rust, natuur en gemoedelijkheid samenkomen. Ideaal voor rustzoekers, wandelaars, fietsers, golfers en jonge gezinnen. Kinderen spelen veilig op de speelvelden en ontmoeten er hun kampeervriendjes. In het nabijgelegen dorp Oudemirdum vind je een warm dorpscentrum met o.a. een bakker, slager, drogist en gezellige terrasjes.
Een stukje historie
Camping De Zonneheuvel begon in 1969 toen Anke en Inne Schotanus naast hun melkveehouderij een kleine camping startten. Hun visie? Kampeerplekken met optimale zonligging en een familiaire sfeer. Inmiddels staat de derde generatie aan het roer, maar de authentieke, landelijke sfeer is gebleven.
In 2000 werd het terrein uitgebreid en ingericht voor chalets. Inmiddels zijn er 42 chalets op het terrein – stuk voor stuk geplaatst op royale kavels. Kinderen aaien nog altijd de geitjes, ezeltjes en pony’s in het dierenweitje. De camping biedt het hele jaar door rust, ruimte en comfort.



