In het kort:
- Vier slaapkamers
- 244 m2 perceelgrootte
- Energie label C
- Eigen oprit met ruimte voor twee auto's
- Garage met elektrische deur
- Tuin gericht op het noordwesten
De Onderweg 19 is een instapklare twee-onder-een-kapwoning. De woning is royaal opgezet en is geschikt voor doorstromers die meer ruimte willen. Het bouwjaar is 1981, de perceelgrootte 244 m2, 111m2 woonoppervlakte, het huis heeft vier slaapkamers en energielabel C.
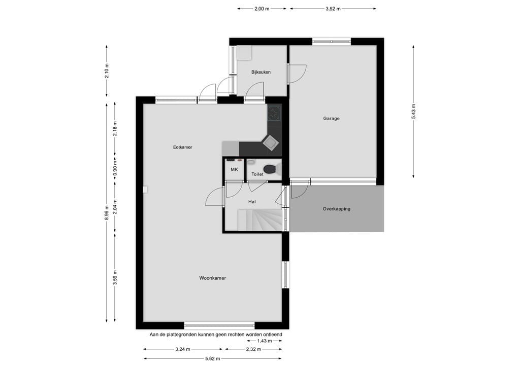
Op de begane grond is de entree in de hal. Hier bevindt zich een meterkast, toilet, trapopgang naar de eerste verdieping en ingang naar de living. Daarnaast bevindt zich een ruime woonkamer, eethoek met een buitendeur naar de tuin, een ruime keuken met een royale bijkeuken met deur naar de garage en achtertuin. In de bijkeuken zijn de aansluitingen voor de wasmachine te vinden.
Op de eerste verdieping bevindt zich een overloop met drie slaapkamers en een fantastische badkamer die voorzien is van een toilet, bubbelbad, wastafel en inloopdouche. De zolder is bereikbaar door middel van een vaste trap en is te gebruiken als bergruimte of als extra slaapkamer.
De ruime garage is te betreden door zowel de elektrische garagedeur als een normale hardhouten deur aan de voorkant van de woning en via de bijkeuken. Er is ruimte voor één auto in de garage.
Om de woning zit een royale voor- en achtertuin. De achtertuin is beschut en is op het noordwesten georiënteerd. Het perceel zorgt voor veel ruimte in de tuin en door de ligging van de woning is er de gehele dag zon. De achtertuin is fraai aangelegd met tegels en een graszode.
De woning wordt verwarmd met een cv-installatie. De woning is goed gelegen aan de rand van het centrum. De woning ligt wel aan een doorgaande weg waardoor er vooral ochtends en avonds verkeer langs komt.
Koudum is een dorp wat ligt in de gemeente Súdwest Fryslân. Het dorp kent 2700 inwoners en is rijk aan voorzieningen. Het dorp Koudum wordt ook wel “het warme hart van de regio Zuidwest Friesland” genoemd. Met zijn centrale ligging in het Zuidwesten van Friesland aan de meren de Morra en de Fluessen, is Koudum een zeer aantrekkelijk woon- en vakantiedorp. Vanaf het vroege voorjaar tot de late herfst wordt Koudum bezocht door vele duizenden toeristen. Deze toeristen komen voor de rust, de prachtige omgeving, de vele sportieve mogelijkheden (waarvan de watersport er één is) en voor de uitstekende accommodaties. De vriendelijkheid van de inwoners van Koudum doet vele toeristen jaarlijks terugkeren.
Bezichtigen? De mogelijkheden om deze fantastische woning te bezichtigen zijn op afspraak. Ook geven wij geïnteresseerden de kans om een tweede bezichtiging te doen. Ook dit kan volgens afspraak gepland worden.


