Te koop: Prachtig chalet op Camping De Kuilart – Koudum (Friesland)
Op zoek naar een heerlijke plek om te genieten van rust, water en natuur? Dit goed onderhouden chalet (± 8 jaar oud) op Camping De Kuilart in het Friese Koudum biedt alles voor een zorgeloze vakantiebeleving in eigen land!
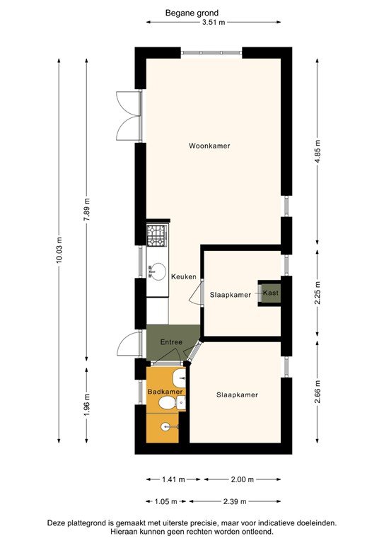
Kenmerken van het chalet
• Woonoppervlakte: ca. 35 m²
• 2 slaapkamers
• Badkamer met wastafel, douche en toilet
• Kunststof kozijnen en dubbele beglazing
• Winterhard geïsoleerd – comfortabel in elk seizoen
• Gelegen op huurgrond van Camping De Kuilart
• Eigen gebruik én verhuur mogelijk
• Jaarpacht +/-2895
Het chalet verkeert in nette staat en is direct gebruiksklaar. Dankzij de kunststof kozijnen en goede isolatie is het onderhoudsarm en geschikt voor langer verblijf.
Seizoensgebruik & Verhuur
De camping is officieel geopend van 1 april t/m 31 september, maar vaste gasten kunnen in overleg langer gebruikmaken van hun chalet. In de wintermaanden wordt het water afgesloten in verband met vorst.
Het chalet mag in eigen beheer worden verhuurd. Optioneel kan de sleuteloverdracht aan gasten worden uitbesteed via De Kuilart tegen een kleine jaarlijkse vergoeding.
• Minimale verhuurperiode: 3 nachten
• Maximale verhuurperiode: 21 dagen
Als huurder of gast betaal je daggeld per persoon, waarmee onder andere toegang tot het zwembad wordt verrekend. Voor eigen gebruik is het mogelijk een seizoenskaart aan te schaffen.
Over Camping De Kuilart
Camping De Kuilart is een 5-sterren vakantiepark in het hart van de Friese meren, perfect voor watersportliefhebbers en gezinnen. De camping biedt uitgebreide faciliteiten:
• Jachthaven met bootverhuur (zeil- en motorboten)
• Binnenzwembad met glijbaan (toegankelijk tegen betaling of via seizoenskaart)
• Restaurant, snackbar en gezellig terras
• Supermarkt
• Tennisbanen en speeltuinen
• Fiets- en wandelroutes door het prachtige Gaasterland
• In het hoogseizoen: animatieprogramma voor jong en oud
De ligging in Koudum – “het warme hart van Friesland” – maakt dit de ideale uitvalsbasis voor uitstapjes naar o.a. Hindeloopen, Workum, Stavoren en het IJsselmeer.
Vraagprijs: Interesse? Neem gerust contact op voor meer informatie of om een bezichtiging te plannen!
Zie onderstaande link voor alle faciliteiten op de camping:
https://www.kuilart.nl/faciliteiten/zwembad/

