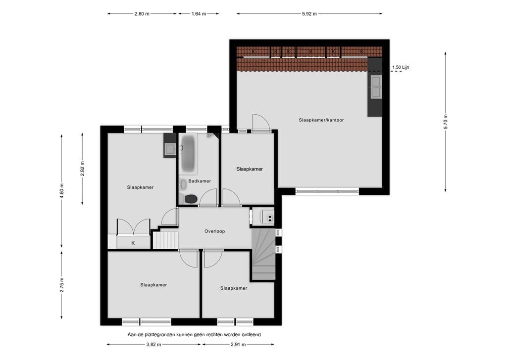
- Zes slaapkamers
- Optie tot werkplek/hobbykamer
- Ruim perceel van 530m2
- Zes zonnepanelen
- Eigen oprit met ruimte voor twee auto's
- Garage met elektrische deur
- Tuin gericht op het zuidwesten
De Binnendijk 9 is een twee-onder-een-kap-woning met veel potentie! De woning is royaal opgezet en is geschikt voor doorstromers die meer ruimte willen. Het bouwjaar is 1969, de perceelgrootte 530m2, 146m2 woonoppervlakte, het huis heeft zes slaapkamers en energielabel D.
Op de begane grond is de entree in de hal. Hier bevindt zich een meterkast, toilet, kelder, trapopgang naar de eerste verdieping en ingang naar de living. Daarnaast bevindt zich een ruime woonkamer, eethoek met een buitendeur naar de tuin, een ruime keuken met een royale bijkeuken met deur naar de oprit, achtertuin en garage. Zowel de bijkeuken als de garage zijn voorzien van een betonvloer. Hier zijn ook de aansluitingen voor de wasmachine te vinden.
Op de eerste verdieping bevindt zich een overloop met vier slaapkamers en een badkamer die voorzien is van een toilet, bad, wastafel en douche. De zolder is bereikbaar door middel van een vaste trap en is te gebruiken als bergruimte of als extra slaapkamer. Via één van de slaapkamers is een doorgang naar de opbouw op de garage. Deze kan gebruikt worden als slaapkamer, hobbykamer of werkkamer.
De ruime garage is te betreden door zowel de elektrische garagedeur als een normale hardhouten deur via de bijkeuken. Er is ruimte voor één auto in de garage.
Om de woning zit een royale voor- en achtertuin. De achtertuin is beschut en is op het zuid westen georiënteerd. Het perceel zorgt voor veel ruimte in de tuin en door de ligging van de woning is er de gehele dag zon. Mooi voor zonaanbidders dus!
De woning wordt verwarmd middels een hete luchtsysteem en boiler voor het warme water. Het systeem kan ook gebruikt worden om de woning te koelen. De woning is goed gelegen aan de rand van het centrum. In de straat rijdt weinig verkeer en naast de woning zit een kinderopvang.
Koudum is een dorp wat ligt in de gemeente Súdwest Fryslân. Het dorp kent 2700 inwoners en is rijk aan voorzieningen. Het dorp Koudum wordt ook wel “het warme hart van de regio Zuidwest Friesland” genoemd. Met zijn centrale ligging in het Zuidwesten van Friesland aan de meren de Morra en de Fluessen, is Koudum een zeer aantrekkelijk woon- en vakantiedorp. Vanaf het vroege voorjaar tot de late herfst wordt Koudum bezocht door vele duizenden toeristen. Deze toeristen komen voor de rust, de prachtige omgeving, de vele sportieve mogelijkheden (waarvan de watersport er één is) en voor de uitstekende accommodaties. De vriendelijkheid van de inwoners van Koudum doet vele toeristen jaarlijks terugkeren.
Bezichtigen? De mogelijkheden om deze fantastische woning te bezichtigen zijn op afspraak. Ook geven wij geïnteresseerden de kans om een tweede bezichtiging te doen. Ook dit kan volgens afspraak gepland worden.



