Wonen in het Wassenaar van Zuidwest Friesland? Welkom bij het voormalige koetshuis aan de Stinsenwei 7 in Harich!
Op zoek naar ruimte, rust en comfort in een karakteristiek Fries dorp? Dan is deze vrijstaande woning op een royaal perceel van maar liefst 1.010 m² jouw droomplek! Gelegen aan de Stinsenwei 7 in het sfeervolle Harich, biedt deze woning 125 m² woonoppervlakte, 3 (mogelijk 4) slaapkamers, een recent geplaatste keuken en volop mogelijkheden binnen én buiten.
De woning in het kort:
• 125 m² woonoppervlakte
• 35 m² externe berging
• Perceel van 1.010 m² eigen grond
• 3 slaapkamers, eenvoudig uit te breiden naar 4
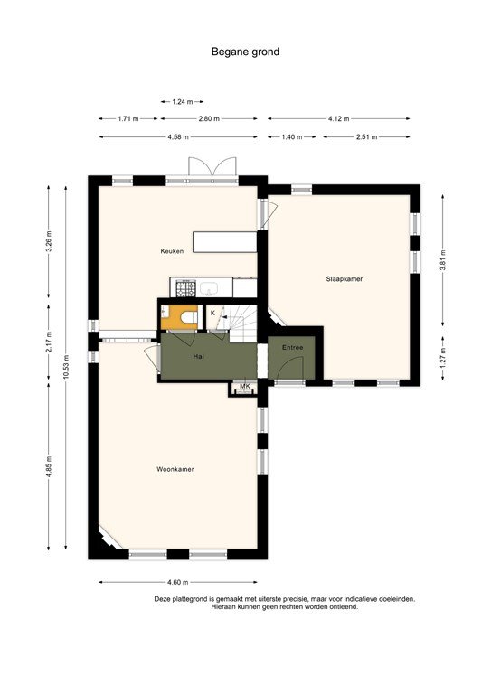
• Complete badkamer met ligbad, douche, wastafel, toilet en witgoedaansluitingen
• Ruime woonkamer met houtkachel
• Moderne keuken met kookeiland en inbouwapparatuur
• Extra multifunctionele ruimte op de begane grond
• Energielabel D
Indeling
Begane grond:
Via de voordeur kom je binnen in de hal met meterkast, toiletruimte en trapopgang. Vanuit hier loop je door naar de ruime en lichte woonkamer, met zicht op de diepe voortuin. De houtkachel zorgt hier voor een gezellige sfeer, vooral in de koudere maanden.
De moderne keuken is recent geplaatst en van alle gemakken voorzien: een kookeiland, gaskookplaat, vaatwasser, koelkast, afzuigkap en combi-oven. Aansluitend aan de keuken bevindt zich een extra kamer, ideaal als hobbyruimte, thuiskantoor of zelfs slaapkamer.
Eerste verdieping:
Hier bevinden zich drie ruime slaapkamers. Eén van de kamers is groot genoeg om te splitsen, waardoor een vierde slaapkamer eenvoudig te realiseren is. De badkamer is compleet uitgerust met douche, ligbad, wastafel, toilet én aansluitingen voor wasmachine en droger.
Buitenleven
De woning staat op een riant perceel met volop mogelijkheden voor tuinliefhebbers, gezinnen of hobbyisten. Er zijn twee separate bergingen aanwezig – perfect voor opslag, kluswerk of creatieve bezigheden.
Locatie – Harich
Harich is een charmant dorp in de gemeente De Fryske Marren, gelegen op steenworp afstand van het gezellige Balk. Hier vind je supermarkten, scholen, sportvoorzieningen en horecagelegenheden – allemaal op fiets- of loopafstand. Harich zelf staat bekend om zijn gemoedelijke sfeer en wordt in de volksmond ook wel het "Wassenaar van Zuidwest Friesland" genoemd. Een dorp met karakter, ruimte en een sterke gemeenschapszin.
Kortom:
Stinsenwei 7 in Harich biedt ruimte, rust én potentie. Een heerlijke plek voor gezinnen, hobbyisten of iedereen die ruim en vrijstaand wil wonen in een geliefde omgeving.
Benieuwd? Maak snel een afspraak voor een bezichtiging – deze woning wil je met eigen ogen zien!









