Joop Schweitzerstrjitte 6 Elahuizen
Highligts:
- Twee onder één kap woning
- 391m2 perceel oppervlakte
- 106 m2 woonoppervlakte
- Bouwjaar 1981
- Gelegen in watersportdorp Elahuizen
- Vier slaapkamers
- Ruime bijkeuken
- Oprit voor meerdere auto's of camper/caravan
- Berging
Welkom op Joop Schweitzerstrjitte 6 in Elahuizen, een goed gebouwde twee-onder-een-kapwoning uit 1981. De huidige bewoners hebben hier jaren met veel plezier gewoond! De begane grond is van beton en de woning is volledig voorzien van dubbele beglazing en houten kozijnen.
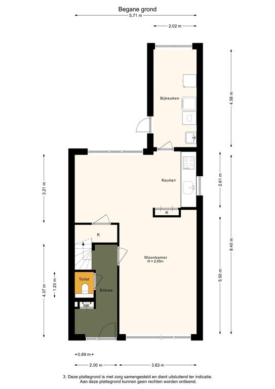
Bij binnenkomst via de voordeur kom je terecht in een ruime hal met toegang tot het toilet, de trapopgang naar de eerste verdieping en de woonkamer. De living is ruim opgezet met een ruime eethoek en woonkamer. De gemoderniseerde keuken is uitgerust met een inductiekookplaat, koelkast, vaatwasser en diverse opbergruimtes.
De ruime bijkeuken is ideaal voor jonge gezinnen, bijvoorbeeld voor het opbergen van een kinderwagen, en beschikt over aansluitingen voor wasmachine en droger. De deur naar de tuin is ideaal wanneer het buiten goed weer is om de was te laten drogen.
Op de eerste verdieping bevinden zich drie slaapkamers en een badkamer, bereikbaar via de overloop. De slaapkamers zijn ruim en de badkamer is voorzien van een wastafel en een ligbad en douche.
De zolder is te bereiken via een vaste trap en biedt mogelijkheden tot het bergen van spullen maar ook te gebruiken als vierde slaapkamer.
De tuin is zeer ruim en goed onderhouden, met meerdere zithoeken waar u kunt genieten van de zon of schaduw.
Wonen in het charmante Elahuizen betekent genieten van rust, ruimte en een prachtige natuurlijke omgeving. Dit sfeervolle dorp, gelegen aan de rand van het uitgestrekte Friese merengebied, is een ideale plek voor liefhebbers van water, natuur en ontspanning. Hier ervaart u elke dag het ultieme vakantiegevoel, gewoon vanuit huis.
Elahuizen staat bekend om zijn gemoedelijke sfeer en hechte gemeenschap. De ligging aan de Fluessen en nabij de Morra maakt het een paradijs voor watersporters, terwijl wandelaars en fietsers hun hart kunnen ophalen in het omliggende landschap met weidse uitzichten en schilderachtige routes.
Hebben we uw interesse gewekt? Dan nodigen wij u graag uit voor een bezichtiging. U kunt contact met ons opnemen via telefoon, e-mail of WhatsApp.







