Highlights van deze woning:
- Bouwjaar 2019
- Energielabel A
- Instap klaar
- Vloerverwarming
- Zonnepanelen
- Ruime garage met carport
- Aan vaarwater met een te huren ligplaats
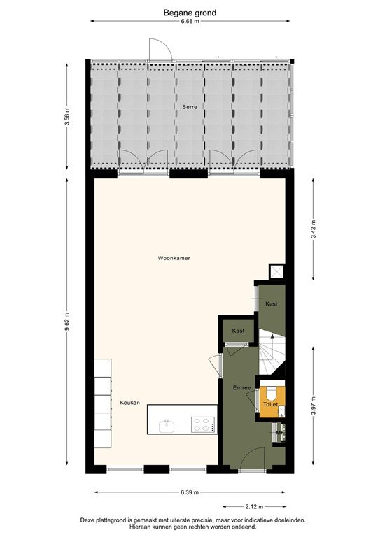
- Woonoppervlakte 164m2
- Perceeloppervlakte 291m2
- Vijf slaapkamers
- Twee badkamers
- Vaste trap naar zolder
- Heerlijke serre die omgebouwd kan worden tot slaapkamer of bijkeuken
- Op loopafstand van alle voorzieningen
Noardwal 9 – stijlvol grachtenpand uit 2019
Dit recent gebouwde grachtenpand (bouwjaar 2019) ligt direct aan openbaar vaarwater en biedt de mogelijkheid tot het huren van een ligplaats. De woning is instap klaar, hoogwaardig afgewerkt en voorzien van energielabel A. Daarnaast beschikt de woning over een ruime garage met carport.







