Highlights van deze woning:
- Drie slaapkamers met een mogelijkheid tot een vierde
- Geheel dubbele beglazing
- Goed geïsoleerd
- Bouwjaar 1965
- Eigen oprit
- Gelegen tegen het centrum
- Energielabel B
- Moderne badkamer, keuken en toilet
- Vloerverwarming
- Tuin gericht op het noord westen
- 226m2 perceel grootte
- 82m2 woonoppervlakte
Graag neem ik jullie mee naar De Menno Simonszstraat 32 in Balk. Een prachtig gemoderniseerde hoekwoning gelegen tegen het centrum van Balk aan. Je stapt op de fiets en bent zo bij de bakker. De woning is gebouwd in 1965 en is volledig instapklaar.
Ben je een starter op de woningmarkt? Dan is dit een heel geschikte woning voor jou. Maar ben je wat ouder en wil je graag iets kleiner wonen? Ook dan kan deze woning helemaal bij je wensen passen. De woning ligt op een perceel van 226m2 en het huis heeft in totaal drie slaapkamers en energielabel B.
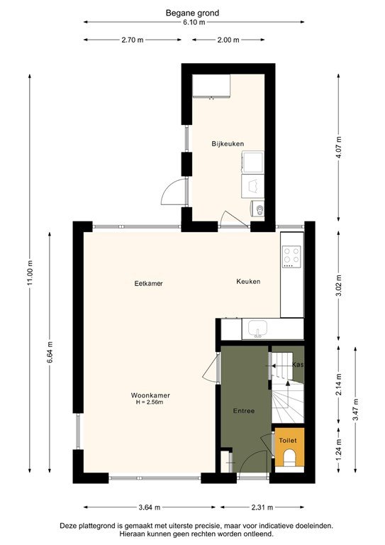
Als je de woning binnenstapt zul je zien dat de woning is voorzien van een betonnenvloer met vloerverwarming, kunststof kozijnen en volledig van dubbele beglazing. Nadat je de deur achter je hebt dichtgedaan, zie je op de begane grond de entree in de hal. Hier zit een meterkast, toilet, ingang naar de living en de trapopgang naar de eerste verdieping. Daarnaast bevindt zich de woonkamer, eetgedeelte en keuken. De bijkeuken is voorzien van een betonvloer en heeft een deur naar de tuin.
Stap je dan op de trap naar boven, dan zie je op de eerste verdieping een overloop met drie slaapkamers en een badkamer met een netjes badmeubel, toilet en inloopdouche. De zolder is bereikbaar door een vaste trap en is te gebruiken als bergruimte of als extra slaapkamer.
Als je even heerlijk naar buiten wil, dan heeft deze woning ook wat moois te bieden! Deze woning heeft een voor- en achtertuin. De achtertuin is beschut en erg knus. Het perceel zorgt voor veel ruimte in de tuin en door de ligging van de woning is er bijna de hele dag zon. Mooi voor zonaanbidders dus!
Balk is de hoofdplaats van voormalig Gaasterland en is rijk aan voorzieningen. Hier is altijd wel iet te doen! Het Friese dorp Balk behoort sinds 2014 tot de gemeente ‘De Friese Meren’. Balk ligt in het zuidoosten van de Provincie Friesland, niet ver van het IJsselmeer. Ook zeker de moeite waard om eens naar toe te gaan. De gemeente De Friese Meren is wat oppervlakte betreft een van de grootste gemeentes van Friesland.
Naast de prachtige oude dorpskern is ook de omgeving van Balk geliefd. De ligging tussen de verschillende Friese meren maken van Balk een uitstekende uitvalsbasis voor bijvoorbeeld watersporters en mensen die er graag te voet of op de fiets op uittrekken om te genieten van het unieke Gaasterlands landschap.
Bezichtigen? Neem dan contact op via de telefoon, mail of whatsapp.







