Monumentale directeurswoning aan de Luts – Lytse Side 13, Balk
Op één van de mooiste plekjes van Balk, direct aan de Luts en de Elfstedenroute, staat deze bijzondere vrijstaande woning uit 1870. Ooit gebouwd als directeurswoning van de coöperatie De Volharding en nog altijd doordrenkt van sfeer, historie en karakter. Met een eigen kade van ca. 50 meter lang is dit een zeldzaam stukje wooncomfort op doorgaand vaarwater – midden in het dorp én toch met volop rust en ruimte.
De woning staat op een royaal perceel van 842 m² en biedt maar liefst 196 m² woonoppervlak. Authentieke details en hedendaags comfort gaan hier hand in hand, waardoor u een unieke woonbeleving ervaart.
Indeling
Begane grond – levensloopbestendig wonen
Via de entree met trapopgang komt u in de hal die toegang geeft tot de woonkamer, voorkamer, toilet en een ruime slaapkamer met aangrenzende badkamer. Deze badkamer is compleet ingericht met ligbad, douche en dubbele wastafel. Daarmee is de woning uitstekend geschikt voor gelijkvloers wonen.
De woonkamer en voorkamer zijn licht en ruim en bieden een prachtig uitzicht op de Luts en het dorpshart van Balk. Aan de achterzijde bevindt zich de keuken, die door de ochtendzon heerlijk licht en uitnodigend aanvoelt. Aangrenzend vindt u de praktische bijkeuken met de technische ruimte. Zowel de woonkamer als keuken zijn voorzien van vloerverwarming.
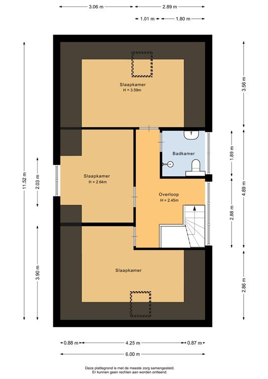
Verdieping
Op de verdieping zijn extra slaapkamers aanwezig, ideaal voor gasten of gezinsbewoning.
Buiten
Het ruime perceel biedt volop mogelijkheden om te genieten van de zon en het uitzicht. De achtertuin ligt op het zuidwesten en geeft veel privacy, terwijl u aan de voorzijde juist volop reuring ervaart met de gezelligheid van de bootjes die langsvaren. De royale kade is ideaal voor waterliefhebbers.
Verder beschikt het perceel over een grote houten berging en een ruime oprit met parkeergelegenheid voor meerdere auto’s en bijvoorbeeld een camper.
Bijzonderheden
• Monumentale vrijstaande woning (bouwjaar 1870)
• Voormalige directeurswoning van coöperatie De Volharding
• Eigen kade van ca. 50 meter aan doorgaand vaarwater (Luts / Elfstedenroute)
• Perceel: 842 m², woonoppervlak: 196 m²
• Levensloopbestendig: slaapkamer en badkamer op de begane grond
• Vloerverwarming in woonkamer en keuken
• Gelegen op unieke en gewilde locatie in hartje Balk
• Dubbele badkamer
• Twee open haarden
Kortom: Lytse Side 13 is een woning waar historie, sfeer en unieke ligging samenkomen. Een monumentaal huis met allure, direct aan de Luts, waar u het hele jaar door kunt genieten van het water, de gezelligheid van Balk en de rust van uw eigen tuin.
Waarom kiezen voor Balk?
Balk is een levendig, kindvriendelijk watersportdorp met alles wat je nodig hebt: basisscholen, middelbare school, sportclubs, supermarkten, non-food winkels, medische zorgpunten, gezellige horeca, restaurants en volop natuur. Centraal gelegen met soort regio functie in Gaasterland, aan het riviertje de Luts, en vlak bij het Slotermeer, maakt Balk extra aantrekkelijk voor gezinnen en echtparen die houden van gezond leven en buiten zijn, watersporten, fietsen of wandelen. Alles is op loop- of fietsafstand in Balk en (publieke) voorzieningen zoals het Ijsselmeer strand in Lemmer, boswandelingen in het Rijsterbos, de golfbaan Oudermirdum en/of ziekenhuis in Sneek liggen om de hoek. Daarnaast ben je binnen 15 minuten op de uitvalswegen (A6) richting de Randstad, kortom Balk is best gunstig gelegen.








