Photo
Photo 2
Photo 3
Photo 4
Photo 5

Eigen Haard 25 8561 EX Balk

€ 4.500,- per maand
Jasper Huisman NVM Register Makelaar
Neem contact op

Omschrijving

Te huur – representatieve kantoorruimte aan Eigen Haard 25 in Balk

Op het bedrijventerrein Eigen Haard in Balk staat dit vrijstaande en representatieve kantoorpand. Het moderne gebouw bestaat uit twee bouwlagen en biedt in totaal circa 598 m² verhuurbare vloeroppervlakte, waarbij kantoorruimte beschikbaar is vanaf ca. 48 m². Hierdoor is het pand geschikt voor zowel kleinere als grotere organisaties die op zoek zijn naar een professionele werkomgeving.

Ligging en bereikbaarheid
Het pand ligt op een zichtlocatie aan de zuidwestzijde van Balk, op bedrijventerrein Eigen Haard. De locatie is uitstekend bereikbaar, direct nabij de N359 (Lemmer – Bolsward – Leeuwarden). Via Lemmer is de aansluiting op de A6 (Joure – Emmeloord – Almere) bereikbaar op circa 13 kilometer afstand.

Begane grond (ca. 314 m²)
Ruime entree met vide en receptie, diverse kantoorruimten, archiefruimte, kantine-/vergaderruimte, pantry, toiletgroep en werkkast.

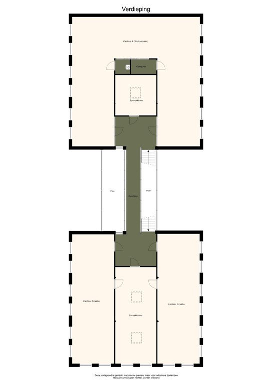
Eerste verdieping (ca. 284 m²)
Diverse kantoorruimten, twee spreekkamers en technische ruimten.

Voorzieningen
Het kantoorpand beschikt onder andere over:

* pantry
* zonnescreens
* airconditioning
* alarminstallatie
* systeemplafonds met verlichting

Parkeren
Op eigen terrein is ruime parkeergelegenheid aanwezig met circa 30 parkeerplaatsen.

Kadastrale informatie
Gemeente Balk, sectie L, nummer 1694, groot 2.220 m.

Bestemming
Volgens het bestemmingsplan Balk – Noord” van de gemeente De Fryske Marren heeft het object de bestemming bedrijventerrein”.

Jasper Huisman NVM Register Makelaar
Neem contact op

Buurt

    Kaart

    Plattegronden

    Floorplan 2
    Floorplan 3
    Floorplan 4
    Floorplan

    Kenmerken

    • Jaar2006
    • BergingNee
    • GarageNee
    • Energie klasseC
    • Aantal verdiepingen2
    • Aantal verdiepingen2