De Warren 7 is een hoekwoning met veel potentie. De woning is ruim opgezet en is geschikt voor starters en voor ouderen die iets kleiner willen gaan wonen. Het bouwjaar is 1976, de perceelgrootte 233m2, het heeft vier slaapkamers en energielabel C.
Het huis is op loop- en fietsafstand van het centrum van Balk. De woning is traditioneel gebouwd met spouwmuren, betonnen vloeren en hardhouten kozijnen. De benedenverdieping is voorzien van dubbele beglazing en zowel de eerste als de tweede verdieping heeft nog enkel glas.
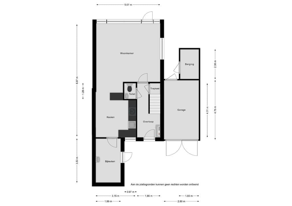
Op de begane grond is de entree in de hal. Hier bevindt zich een meterkast, toilet, trapopgang naar de eerste verdieping en ingang naar de living. Daarnaast bevindt zich een ruime woonkamer met een buitendeur naar de tuin, een open keuken met een royale bijkeuken met deur naar de oprit. De bijkeuken is voorzien van een betonvloer. Hier zijn ook de aansluitingen voor de wasmachine te vinden.
Op de eerste verdieping bevindt zich een overloop met drie slaapkamers en een badkamer die voorzien is van een bad meubel en inloop douche. De zolder is bereikbaar door middel van een vaste trap en is te gebruiken als bergruimte of als extra slaapkamer. Op de zolder zit ook de Cv-ketel die het bouwjaar 2020 heeft.
De ruime houten garage is te betreden door zowel de openslaande deuren als een normale hardhouten deur. Er is ruimte voor één auto in de garage en heeft een plat dak.
Om de woning zit een royale voor- en achtertuin. De achtertuin is beschut en erg knus. Het perceel zorgt voor veel ruimte in de tuin en door de ligging van de woning is er de gehele dag zon. Mooi voor zonaanbidders dus!
De woning is goed gelegen aan de rand van het centrum. In de straat rijdt redelijk wat verkeer langs door de dichtbijgelegen supermarkt en het centrum. Balk is de hoofdplaats van voormalig Gaasterland en is rijk aan voorzieningen.
Het Friese dorp Balk behoort sinds 2014 tot de gemeente ‘De Friese Meren’. Balk ligt in het zuidoosten van de Provincie Friesland, niet ver van het IJsselmeer. De gemeente De Friese Meren is wat oppervlakte betreft een van de grootste van Friesland.
Balk zelf heeft ongeveer vierduizend inwoners en een rijke geschiedenis, vooral door de boterhandel, waardoor het dorp in de loop der eeuwen veel monumentale gebouwen heeft gekregen op haar grondgebied.
Naast de prachtige oude dorpskern is ook de omgeving van Balk geliefd. De ligging tussen de verschillende Friese meren maken van Balk een uitstekend uitvalsbasis voor bijvoorbeeld watersporters en mensen die er graag te voet of op de fiets op uittrekken om te genieten van het unieke Gaasterlandse landschap.
Bezichtigen? De mogelijkheden om deze fantastische woning te bezichtigen zijn i.v.m. de vakantieperiode op afspraak. Ook geven wij geïnteresseerden de kans om een tweede bezichtiging te geven. Ook dit kan volgens afspraak gepland worden.


