De Warren 38 Balk
In het kort:
- Levensloopbestendig te maken
- Twee slaapkamers
- Ruime garage
- Betonnen begane grond- en verdiepingsvloer
- Perceelgrootte van 286 m²
- Tuin op het zuidoosten
- Op loopafstand van alle voorzieningen
- Grotendeels voorzien van dubbel glas
De Warren 38 in Balk is een geschakelde woning die je niet elke dag tegenkomt. De woning is zeer geschikt voor starters en ouderen die kleiner willen wonen. Er is een mogelijkheid voor een slaap- en badkamer op de begane grond. Deze potientieele kamer kan ook perfect als kantoor of studeerkamer worden ingericht. Het bouwjaar van de woning is 1981, en de perceelgrootte is 286 m². In totaal heeft het huis twee slaapkamers.
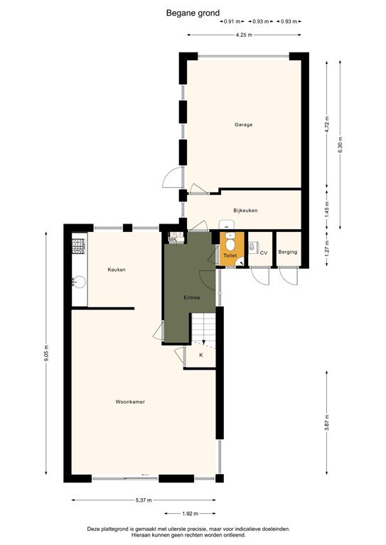
Op de begane grond is de entree in de hal. Hier bevindt zich de meterkast, het toilet, de ingang naar de woonkamer en de bijkeuken. Daarnaast is er een royale woonkamer met een schuifpui naar de voortuin. Via de bijkeuken betreed je de garage en deur naar de tuin. De wasmachine en droger kunnen worden geplaatst in de bijkeuken.
Op de eerste verdieping bevindt zich een overloop met twee slaapkamers en een badkamer die is voorzien van een badmeubel, toilet en de douche.
De externe berging is te betreden via de buitenkant. Rondom de woning ligt een royale voor- en achtertuin. De achtertuin biedt veel privacy en genoeg ruimte om van de zon te genieten.
De gehele woning wordt verwarmd middels radiatoren en een HR-combiketel. Deze bevindt zich in de technische ruimte naast de voordeur, die ook geschikt is als berging.
De woning is goed gelegen in een rustige buurt, op loopafstand van alle voorzieningen in Balk. Balk is de hoofdplaats van het voormalige Gaasterland en biedt veel voorzieningen. Het Friese dorp Balk behoort sinds 2014 tot de gemeente De Friese Meren. Balk ligt in het zuidoosten van de provincie Friesland, niet ver van het IJsselmeer. De gemeente De Friese Meren is qua oppervlakte een van de grootste gemeenten van Friesland. Balk zelf heeft ongeveer vierduizend inwoners en een rijke geschiedenis, vooral door de boterhandel, waardoor het dorp door de eeuwen heen veel monumentale gebouwen heeft gekregen. Naast de prachtige oude dorpskern is ook de omgeving van Balk geliefd. De ligging tussen de verschillende Friese meren maakt Balk een uitstekende uitvalsbasis voor bijvoorbeeld watersporters en mensen die er graag te voet of per fiets op uittrekken om te genieten van het unieke Gaasterlandse landschap.
Bezichtigen? Neem dan contact op via telefoon, e-mail of WhatsApp.





