De Warren 21 – Balk
Highligts:
- Bouwjaar 1976
- Vier slaapkamers
- Vaste trap naar de zolder
- Energielabel C
- Op loopafstand van het centrum
- Beschutte achtertuin
- Ruime bijkeuken
- 91m2 woonoppervlakte
- 151m2 perceel oppervlakte/
Aan de rand van het centrum van Balk staat deze ruime tussenwoning met volop mogelijkheden. De woning is praktisch ingedeeld en daarmee zeer geschikt voor starters, maar ook voor mensen die comfortabel en gelijkvloers kleiner willen wonen met extra ruimte op de verdiepingen. De woning is gebouwd in 1976, staat op een perceel van 151 m², beschikt over vier slaapkamers en heeft energielabel C.
De ligging is prettig: op loop- en fietsafstand van het centrum van Balk, met alle voorzieningen binnen handbereik. De woning is traditioneel gebouwd met spouwmuren, betonnen vloeren en hardhouten kozijnen.
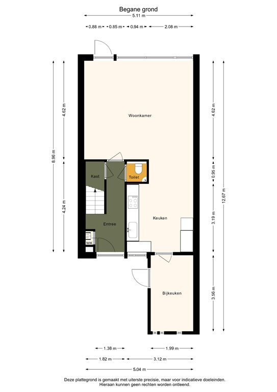
Via de entree komt u in de hal met meterkast, toilet en trapopgang naar de eerste verdieping. Vanuit de hal heeft u toegang tot de woonkamer, die dankzij de ligging prettig licht is en beschikt over een buitendeur naar de tuin. De open keuken sluit aan op de royale bijkeuken, waar zich tevens de aansluitingen voor het witgoed bevinden. Deze ruimte is uitgevoerd met een betonvloer en biedt extra bergruimte.
Op de eerste verdieping bevinden zich een overloop, drie slaapkamers en een badkamer voorzien van een badmeubel en een douche. De zolder is bereikbaar via een vaste trap en kan dienen als bergruimte of als extra slaapkamer. Hier bevindt zich ook de cv-ketel (bouwjaar 2010).
Rondom de woning ligt een royale voor- en achtertuin. De achtertuin is beschut en knus, met volop privacy. Dankzij de gunstige ligging kunt u hier de hele dag van de zon genieten – een fijne plek voor liefhebbers van buitenleven.
De woning ligt aan de rand van het centrum. In de straat is sprake van enige verkeersbeweging door de nabijgelegen supermarkt en het centrum. Balk is de hoofdplaats van het voormalige Gaasterland en beschikt over een uitgebreid voorzieningenaanbod.
Balk maakt sinds 2014 deel uit van de gemeente De Friese Meren en ligt in het zuidoosten van Friesland, op korte afstand van het IJsselmeer. Het dorp telt circa 4.000 inwoners en kent een rijke historie, zichtbaar in de vele monumentale panden die het dorpsbeeld sieren.
Niet alleen het dorp zelf, maar ook de omgeving maakt Balk geliefd. De ligging tussen de Friese meren en het karakteristieke Gaasterlandse landschap maakt dit een uitstekende woonomgeving voor watersporters, wandelaars en fietsers.





