In het kort:
- Drie slaapkamers en een studeerkamer
- Badkamer (2014)
- Tuin met achterom
- Berging in de tuin
- Toilet en inloopdouche
- Zonnepanelen (2022)
- Houtkachel
- Gezellige buurt
- Op loopafstand van het centrum
- Speeltuin om de hoek
- Energielabel B
De Eker 4 is een opvallende hoekwoning met een unieke indeling. Deze ruime woning, geschikt voor zowel starters als senioren die kleiner willen wonen, biedt drie slaapkamers en mogelijkheden voor een slaap- en badkamer op de begane grond. Gebouwd in 1978 op een perceel van 104m2, beschikt het huis over een energielabel B.
De ligging is ideaal, op loop- en fietsafstand van het centrum van Balk. Traditioneel gebouwd met spouwmuren, betonnen vloeren, kunststof en hardhouten kozijnen en voorzien van dubbele beglazing.
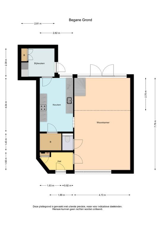
Op de begane grond betreed je via de hal de ruime woonkamer met een buitendeur naar de tuin en een gezellige houtkachel. De open keuken heeft een inductiekookplaat, combioven en granieten werkblad. De originele beneden badkamer is omgebouwd tot voorraadkast, terwijl een aangebouwde bijkeuken plaats biedt voor de wasmachine en droger, met een achterdeur naar de tuin. De woningen aan De Eker waren oorspronkelijk ontworpen voor senioren en zijn in de loop der jaren aangepast. Alle aansluitingen voor een slaapkamer en badkamer op de begane grond zijn aanwezig, wat de woning geschikt maakt voor verschillende doelgroepen.
Op de eerste verdieping bevinden zich drie slaapkamers en een badkamer met wastafel, inloopdouche en toilet. De zolder, bereikbaar via een vaste trap, kan dienen als bergruimte of als studeer-/hobbykamer.
De houten berging met plat dak is van buitenaf toegankelijk.
Een ruime achtertuin biedt privacy en beschutting, met veel zon gedurende de dag, perfect voor liefhebbers van zonnige plekken!
De woning ligt in een rustige, kindvriendelijke buurt met enkel bestemmingsverkeer. Balk, onderdeel van de gemeente 'De Friese Meren' sinds 2014, is een historisch dorp met zo'n vierduizend inwoners. De omgeving is geliefd vanwege de ligging tussen Friese meren, ideaal voor watersporters en natuurliefhebbers die willen genieten van het unieke Gaasterlandse landschap.
Balk zelf heeft een rijke geschiedenis, met veel monumentale gebouwen en voorzieningen.
Voor een bezichtiging, neem contact op via telefoon, e-mail of WhatsApp.







