De Dammen 45 is een moderne twee-onder- één- kap- woning die je zo kan betreden. De woning is ruim opgezet en is geschikt voor starters en voor ouderen die iets kleiner willen gaan wonen. Er is namelijk een optie om beneden een slaap- en badkamer te realiseren, omdat daar simpelweg ruimte voor is. Het bouwjaar is 1980, de perceelgrootte 392m2, het huis heeft drie slaapkamers en energielabel C. De achtertuin is zuidwest gelegen en daardoor is het dak op de achterkant van de woning perfect voor het plaatsen van zonnepanelen.
Het huis is op loop- en fietsafstand van het centrum van Balk. De woning is traditioneel gebouwd met spouwmuren, betonnen vloeren en hardhouten kozijnen. De woning is volledig voorzien van dubbele beglazing.
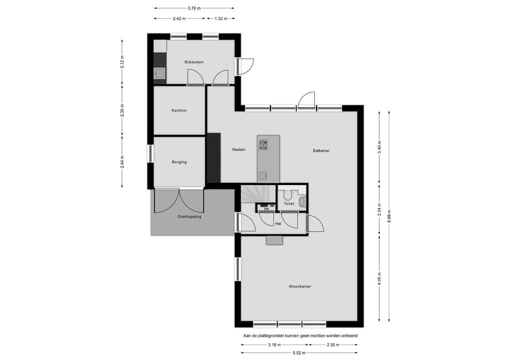
Op de begane grond is de entree in de hal. Hier bevindt zich een meterkast, toilet en de ingang naar de living. Daarnaast bevindt zich een ruime woonkamer, een open keuken met een bijkeuken en buiten buitendeur naar de tuin. In de bijkeuken vind je de aansluitingen voor de wasmachine en droger en ook is er een deel van de garage omgebouwd en deze kamer kan gebruikt worden als opslag, werkruimte of zelfs slaapkamer. Dit geeft deze woning goed de mogelijkheid om zowel een slaapkamer en dus een badkamer op de benedenverdieping te maken.
Op de eerste verdieping bevindt zich een overloop met drie slaapkamers en een moderne badkamer die voorzien is van een bad meubel en inloopdouche. De zolder is bereikbaar door middel van een vaste trap en is te gebruiken als bergruimte, slaapkamer of hobbyruimte.
Om de woning zit een royale voor- en achtertuin. De achtertuin is beschut en erg knus. Het perceel zorgt voor veel ruimte in de tuin en door de ligging van de woning is er de gehele dag zon. Mooi voor zonaanbidders dus!
De woning is goed gelegen en ligt in een kindvriendelijke buurt. Er rijdt alleen bestemmingsverkeer op de weg en dit geeft veel rust. De woning ligt op fiets- en loopafstand van het centrum van Balk. Balk is de hoofdplaats van voormalig Gaasterland en is rijk aan voorzieningen.
Het Friese dorp Balk behoort sinds 2014 tot de gemeente ‘De Friese Meren’. Balk ligt in het zuidoosten van de Provincie Friesland, niet ver van het IJsselmeer. De gemeente De Friese Meren is wat oppervlakte betreft een van de grootste gemeentes van Friesland.
Balk zelf heeft ongeveer vierduizend inwoners en een rijke geschiedenis, vooral door de boterhandel, waardoor het dorp in de loop der eeuwen veel monumentale gebouwen heeft gekregen op haar grondgebied.
Naast de prachtige oude dorpskern is ook de omgeving van Balk geliefd. De ligging tussen de verschillende Friese meren maken van Balk een uitstekend uitvalsbasis voor bijvoorbeeld watersporters en mensen die er graag te voet of op de fiets op uittrekken om te genieten van het unieke Gaasterlands landschap.
Bezichtigen? Neem dan contact op via de telefoon, mail of whatsapp.


