Tunkershof 13, Bakhuizen
Kenmerken:
- Woonoppervlakte van 152m2
- Vier slaapkamers
- Ruime garage
- 11 zonnepanelen (geïnstalleerd in 2021)
- Landelijke stijl
- Bouwjaar: 1999
- Twee opritten en een carport voor meerdere auto's of een camper
- Levensloopbestendig
- Dubbele badkamer
- Energielabel A
- Kavelgrootte: 855m2
- Tuin rondom
- Vloerverwarming op de begane grond
Deze unieke, ruime levensloopbestendige woning bevindt zich aan Tunkershof in Bakhuizen. Met een woonoppervlakte van 152m2 en een ruim perceel van 855m2, gebouwd in 1999 en voorzien van energielabel A, biedt deze woning het beste in comfort en ruimte.
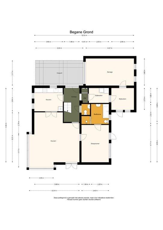
Bij binnenkomst via de voordeur betreedt u een hal op de begane grond met de meterkast, toegang tot de woonkamer, een trap naar boven en een ingang naar de keuken en bijkeuken. Het leefgedeelte is royaal opgezet en de gehele begane grond is voorzien van vloerverwarming. De woonkamer heeft een deur naar de slaapkamer en badkamer, en biedt ook toegang tot de tuin via openslaande deuren.
Op de eerste verdieping biedt de overloop toegang tot drie slaapkamers en een badkamer, compleet met wastafel, douche en toilet. Een bergkast en de zolder, bereikbaar via een vlizotrap, bevinden zich ook op deze verdieping.
De buitenruimte is een parel van deze woning, met zowel een voor- als achtertuin. De ruime achtertuin herbergt een bergschuur en biedt dankzij de ligging de hele dag zonlicht, perfect voor zonliefhebbers. De garage, voorzien van stroomaansluiting, biedt veelzijdigheid. De oprit is ruim, geschikt voor meerdere voertuigen, zelfs een camper of caravan.
De woning is uitstekend geïsoleerd en door de vele ramen komt er veel daglicht binnen. Gelegen in een landelijke stijl in de kindvriendelijke buurt Bakhuizen, biedt de omgeving rust en goede bereikbaarheid met voorzieningen zoals het centrum van Bakhuizen en een supermarkt op loopafstand.
De omgeving van Bakhuizen, gelegen in Nationaal Landschap Zuidwest Fryslân, kenmerkt zich door glooiende landschappen en bossen, in tegenstelling tot het typische vlakke weidekarakter van Friesland.
Interesse gewekt? Neem gerust contact met ons op via telefoon, e-mail of WhatsApp voor een bezichtiging. We plannen graag een afspraak met u in!







